Description de l'offre
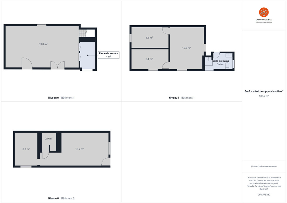
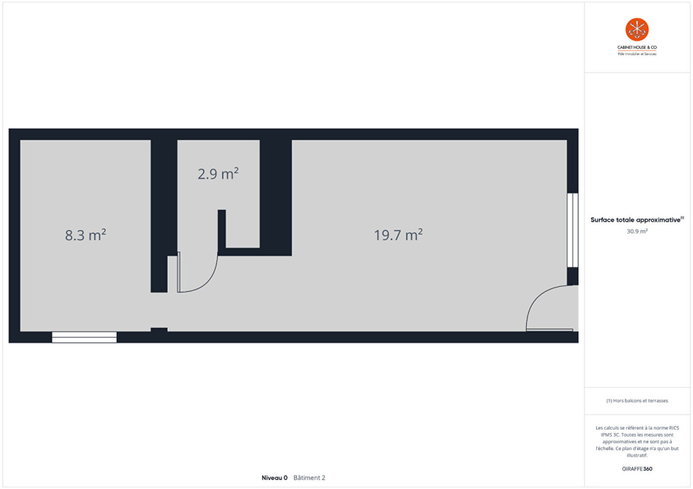
EXCLUSIVITE // Maison de 74 m² + 28 m² dépendances.Située dans le cadre verdoyant de l'Île Piot, à seulement quelques minutes du centre historique d'Avignon.La maison de 74 m² s'adresse à ceux qui recherchent un projet de rénovation à forte valeur ajoutée, dans un emplacement privilégié conjuguant sérénité, charme et potentiel.Au rez- de chaussée une pièce de vie de 30 m² avec accès au jardin par les deux portes fenêtres.A l'étage deux chambres ainsi qu'une pièce a aménager en fonction de vos critères.La salle de bains avec le toilettes sont sur le même étage.De plus la maison est complétée par un espace de 28 m² avec accès au jardin de 390 m² avec son platane.Le plus est un forage avec installation récente.Le bien est en copropriété de deux lots.DPE : FGES: FPrix : 212 000 euros Honoraires à la charge du vendeur.Ref : GM25-1945Les informations sur les risques auxquels ce bien est exposé sont disponibles sur le site Géorisques : www.georisques.gouv.com Copropriété de 2 lots (). Gaelle MAHUET (EI) Agent Commercial - Numéro RSAC : - .

